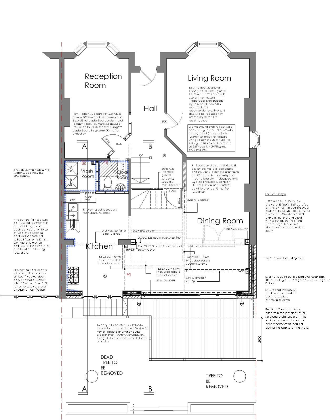
Extension

London SW7

This was a successful planning application and building Regulation for a semi detached home in South West London including a rear extension and internal modifications.

Significant glazing meant a energy efficiency consultant was required to pass the building regulations requirements

Conversion

Kent/Sussex Border

Building regulations. I converted this former public house to 7 one and two bedroom apartments. This was a sensitive site and special thought required to neighbouring properties.

New build and extension, Gravesend

Building Regulations. This was a single dwelling built on an existing garden plot. The existing Home was extended to take advantage of the plot

Conversion,

Gravesend

Building Regulations. This former Public house was converted to 12 single bedroom apartments. with tight confined site access this was a challenging build.

Housing Estate,

Surrey

Building regulations. This large Housing estate in Redhill comprised of around 70 detached, semi dethatched and apartment buildings

Conversion

Gravesend 

Building Regulations. This former office was converted to a child care centre and associated offices and kitchns

Rear extension Bromley

Planning and Building Regulations. This extension was completed to a substantial dwelling on Bromley.

Housing Estate 

West Sussex

Building Regulations. This major new build estate was completed whilst freelancing for a reputable developer